Porzione di bifamiliare in vendita

San Giovanni Lupatoto, Via Berto Barbarani - Raldon
€ 145.000
5 locali 5 locali
145 Mq 145 Mq
1 bagno 1 bagno

Porzione di bifamiliare in vendita

San Giovanni Lupatoto, Via Berto Barbarani - Raldon

Descrizione annuncio

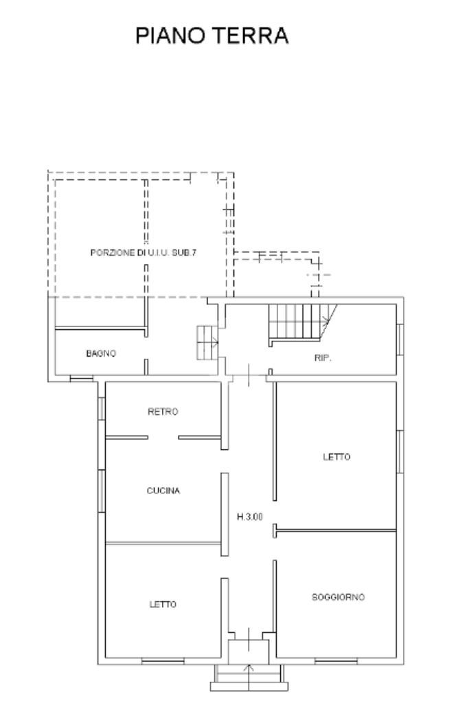
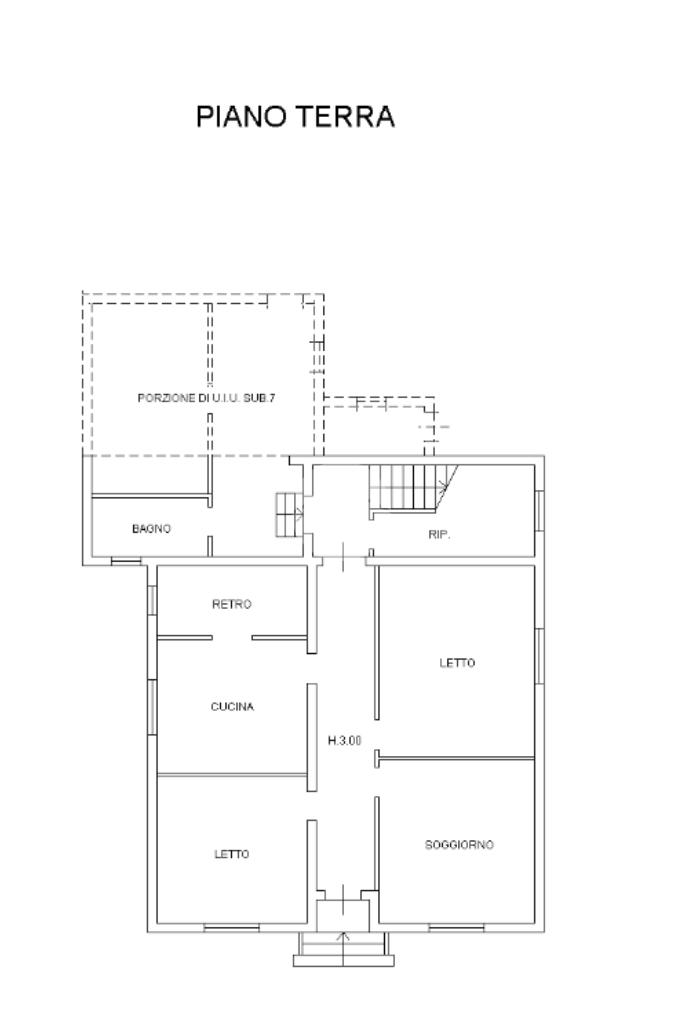
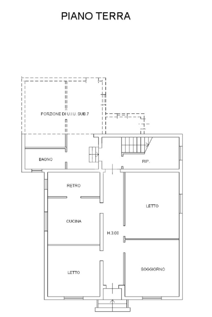
RALDON - PORZIONE DI BIFAMILIARE

In una tranquilla e riservata via di Raldon, proponiamo in vendita una porzione di bifamiliare al piano terra con ingresso indipendente e giardino angolare. L’abitazione, libera da subito, si caratterizza per gli ampi spazi interni e per la piacevole luminosità che la contraddistingue.

L’ingresso conduce a un corridoio centrale che distribuisce in modo funzionale tutti gli ambienti della casa: tre camere da letto, tutte di dimensioni matrimoniali, una spaziosa zona cucina con adiacente sala da pranzo, un bagno finestrato dotato di doccia e zona lavanderia, oltre a un comodo ripostiglio. All’esterno, in adiacenza all’abitazione, è presente un posto auto scoperto di pertinenza.

La proprietà è situata in una zona residenziale silenziosa, lontana dal traffico ma comoda ai principali servizi. Pur presentandosi in buone condizioni generali, l’immobile offre la possibilità di interventi di miglioramento e ammodernamento, ideali per personalizzare gli ambienti secondo il proprio gusto e le proprie esigenze.

Nell’annuncio sono incluse alcune immagini in formato rendering, pensate per illustrare il potenziale della casa e suggerire soluzioni d’arredo e di rinnovamento degli spazi.

Mostra tutto

Nelle vicinanze

Trasporto pubblico Trasporto pubblico
Campagnola
Campagnola
820 m
Campagnola II
Campagnola II
1,2 Km
Scuole Scuole
Scuole
290 m
Maria Immacolata
2,8 Km
Bar Bar
Absolute Cafè
3,0 Km
Ristoranti Ristoranti
Ristorante al lago delle Rose
1,3 Km
Free Food
1,8 Km
Il Granaio
2,9 Km
Mostra tutto

Caratteristiche

Rif.:
61140062
Piano:
Terra con giardino di 2
Totale piani:
2
Posti auto:
1
Camere da letto:
3
Arredamento:
Assente
Mostra tutto
Prezzo Prezzo
€ 145.000
Rata mutuo Rata mutuo
€ 684 / mese
Spese annue Spese annue
€ 0
Proponi il tuo prezzoProponi il tuo prezzo

Classe Energetica

Questo immobile è esente da classe energetica
Anno di costruzione:
1967
Riscaldamento:
Autonomo
Tipo impianto:
A radiatori
Tipo alimentazione:
Metano

Ti interessa visionare l'immobile?

Fissa un appuntamento  Fissa un appuntamento

Richiedi informazioni

Clicca su Leggi per aprire l'informativa
* Questi campi sono obbligatori

Calcola il tuo mutuo

Semplice e senza impegno
Anticipo

( % )
Mutuo

( % )

pochi semplici passi

inserisci i tuoi dati
Questionario completato
Grazie per aver richiesto un appuntamento senza impegno con un nostro Consulente del Credito e Assicurativo.

Hai inserito correttamente tutti i dati necessari e a breve riceverai una e-mail con un link da convalidare per inviare i tuoi dati.
Affiliato
Immobiliare Castel D'Azzano Srl
Via Garofoli, 52 37057 San Giovanni Lupatoto (VR)

Il nostro staff


  • Daniele De Fanti
    Collaboratore

  • Marco Di Giovannantonio
    Affiliato

  • Laura Guerra
    Coordinatrice

  • Anna Speranza Lunardi
    Collaboratrice

  • Mauro Vedovello
    Responsabile
Via Garofoli, 52 37057 San Giovanni Lupatoto (VR)
Zona: San Giovanni Lupatoto
Mostra su mappa
Orari: LUN - VEN 09:00 - 12:30 / 15:00 - 19:30 ; SAB 09:00 - 12:30
Affiliato
Immobiliare Castel D'Azzano Srl
Via Garofoli, 52 37057 San Giovanni Lupatoto (VR)

2026 Tecnocasa Franchising S.p.A. - P. IVA 08365160152 - Via Monte Bianco 60/A 20089 Rozzano (MI). Ogni agenzia ha un proprio titolare ed è autonoma. Privacy policy | Policy utilizzo | Cookie policy