5 locali in vendita

Legnago, Via Giacomo Matteotti
€ 250.000
5 locali 5 locali
126 Mq 126 Mq
2 bagni 2 bagni

5 locali in vendita

Legnago, Via Giacomo Matteotti

Descrizione annuncio

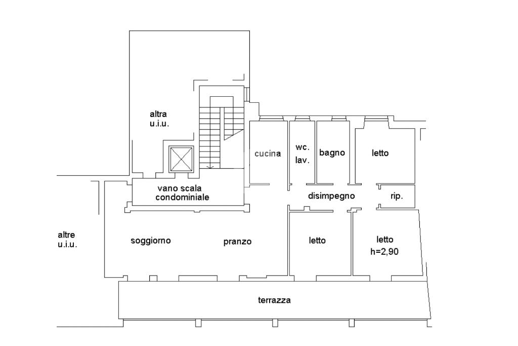
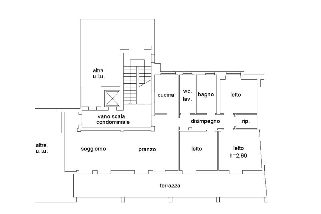
LEGNAGO - ATTICO IN CENTRO PAESE

Nel pieno centro di Legnago, proponiamo in vendita un appartamento situato al sesto ed ultimo piano di un edificio costruito nel 1997. L’immobile è stato mantenuto con grande cura e attenzione nel corso degli anni, e si presenta oggi in condizioni impeccabili, pronto per essere abitato senza necessità di interventi.

L’ingresso principale conduce direttamente alla zona giorno, dove troviamo una luminosa sala da pranzo. Una tramezza separa quest’ultima dall’ampio salotto, creando due ambienti distinti ma comunicanti. La cucina, non abitabile, è invece separata dalla zona pranzo da una porta, garantendo praticità e discrezione. Il salotto affaccia su una terrazza di ampie dimensioni, che si estende lungo l’intero lato dell’appartamento e alla quale si accede anche da due delle tre camere matrimoniali.

La zona notte è composta da tre camere da letto, tutte matrimoniali e di metratura generosa. Completano l’immobile due bagni e un comodo ripostiglio, il primo bagno è finestrato con doccia e il secondo cieco attualmente adibito a lavanderia. L’appartamento dispone inoltre di due ingressi distinti, di cui uno attualmente inutilizzato ma perfettamente funzionante, che offre la possibilità di creare un accesso secondario.

Con una superficie complessiva di circa 126 metri quadrati, l’abitazione è dotata di vari comfort, tra cui tapparelle elettriche. La posizione centrale la rende particolarmente comoda a tutti i principali servizi e ideale per chi cerca una soluzione spaziosa in un contesto riservato ma perfettamente servito.

Si informa la gentile clientela che le spese condominiali ammontano a circa 1.800 € annui e includono anche i costi del riscaldamento, grazie alla presenza della caldaia centralizzata.

Una proposta unica per chi desidera vivere in centro senza rinunciare alla tranquillità e alla comodità degli spazi.

Mostra tutto

Nelle vicinanze

Trasporto pubblico Trasporto pubblico
stazione di Legnago
stazione di Legnago
460 m
Piazzetta Cotta
Piazzetta Cotta
240 m
Legnago Canossiane
Legnago Canossiane
270 m
Scuole Scuole
Liceo Statale Giovanni Cotta
210 m
Isiss Marco Minghetti
300 m
Scuole
300 m
Scuola Media Don Bosco
550 m
ENAIP Veneto CSF Legnago
560 m
Farmacia Farmacia
Farmacia Torelli
130 m
Farmacia Bocchi
200 m
Farmacia Mazzon
530 m
Farmacia Zanoni
580 m
Farmacia Madonna della Salute
810 m
Ospedali Ospedali
Ospedale Mater Salutis
920 m
Supermercati Supermercati
A&O
140 m
Lidl
720 m
Bar Bar
Bar
160 m
Barba & Mostaci
170 m
Trinity
2,7 Km
Ristoranti Ristoranti
M'infarino
100 m
Ristorante da Sandro
500 m
pizzeria al taglio
710 m
Pizzeria Cavour
1,1 Km
Pizzeria Mundial
1,4 Km
Mostra tutto

Caratteristiche

Rif.:
61124129
Piano:
6 di 6 con ascensore (ultimo Piano)
Terrazzi:
1
Camere da letto:
3
Arredamento:
Parziale
Condizionamento:
Autonomo
Mostra tutto
Prezzo Prezzo
€ 250.000
Rata mutuo Rata mutuo
€ 1.179 / mese
Spese annue Spese annue
€ 1.800
Proponi il tuo prezzoProponi il tuo prezzo

Altre caratteristiche

Classe Energetica

Questo immobile è esente da classe energetica
Anno di costruzione:
1960
Riscaldamento:
Centralizzato
Tipo impianto:
A radiatori
Tipo alimentazione:
Metano

Ti interessa visionare l'immobile?

Fissa un appuntamento  Fissa un appuntamento

Richiedi informazioni

Clicca su Leggi per aprire l'informativa
* Questi campi sono obbligatori

Calcola il tuo mutuo

Semplice e senza impegno
Anticipo

( % )
Mutuo

( % )

pochi semplici passi

inserisci i tuoi dati
Questionario completato
Grazie per aver richiesto un appuntamento senza impegno con un nostro Consulente del Credito e Assicurativo.

Hai inserito correttamente tutti i dati necessari e a breve riceverai una e-mail con un link da convalidare per inviare i tuoi dati.
Affiliato
Immobiliare Castel D'Azzano Srl
Via Garofoli, 52 37057 San Giovanni Lupatoto (VR)

Il nostro staff


  • Daniele De Fanti
    Collaboratore

  • Marco Di Giovannantonio
    Affiliato

  • Laura Guerra
    Coordinatrice

  • Anna Speranza Lunardi
    Collaboratrice

  • Mauro Vedovello
    Responsabile
Via Garofoli, 52 37057 San Giovanni Lupatoto (VR)
Zona: San Giovanni Lupatoto
Mostra su mappa
Orari: LUN - VEN 09:00 - 12:30 / 15:00 - 19:30 ; SAB 09:00 - 12:30
Affiliato
Immobiliare Castel D'Azzano Srl
Via Garofoli, 52 37057 San Giovanni Lupatoto (VR)

2026 Tecnocasa Franchising S.p.A. - P. IVA 08365160152 - Via Monte Bianco 60/A 20089 Rozzano (MI). Ogni agenzia ha un proprio titolare ed è autonoma. Privacy policy | Policy utilizzo | Cookie policy